
Maison Versailles
Etage - 180 m² - 3 chambres
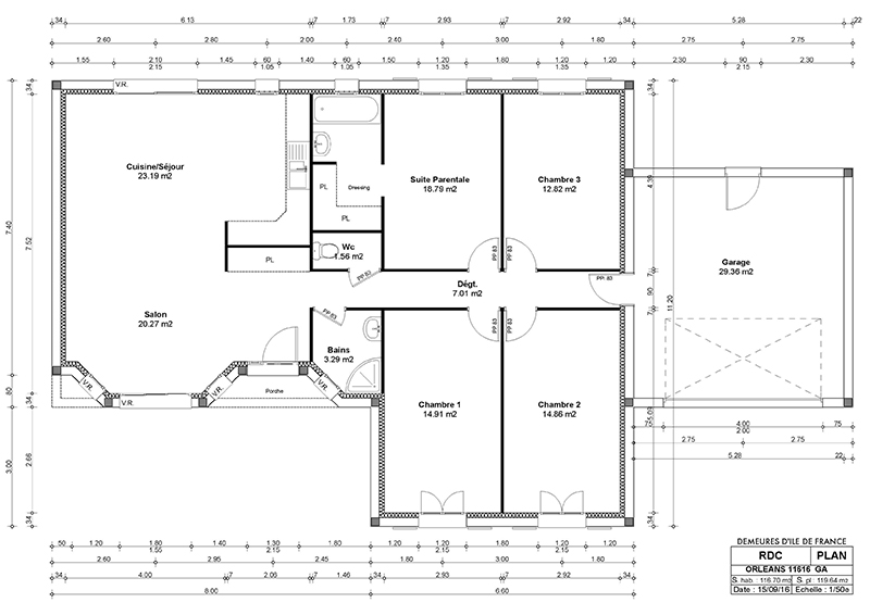
La réalisation 2 est une maison à étage de 129 m2, avec garage intégré. De style classique et élégant, son architecture complexe et originale est adaptée à tous les environnements et tous les types de terrains. Ses toitures à quatre pentes et ses décrochés de façade en façade avant et en façade arrière lui donnent un cachet certain.
Pensé pour le confort de ses habitants
Le plan de cette maison est pensé pour le confort de ses habitants. Au rez-de-chaussée, de vastes espaces de vie commune, avec un large hall d’entrée distribuant un séjour lumineux de 37 m2, ouvert sur une cuisine dinatoire et son cellier, ainsi qu’une suite parentale de 15 m2 avec sa grande salle de bain privative (avec baignoire). À l’étage, deux autres chambres, dont une donnant sur le balcon, et une salle de bain pour toute la famille.
Pensé pour le confort de ses habitants
Le plan de cette maison est pensé pour le confort de ses habitants. Au rez-de-chaussée, de vastes espaces de vie commune, avec un large hall d’entrée distribuant un séjour lumineux de 37 m2, ouvert sur une cuisine dinatoire et son cellier, ainsi qu’une suite parentale de 15 m2 avec sa grande salle de bain privative (avec baignoire). À l’étage, deux autres chambres, dont une donnant sur le balcon, et une salle de bain pour toute la famille.







