
Maison DAUPHINE
Etage - 96m² - 3 chambres
Le modèle Dauphine est une maison à étage de 96 m² habitables, au style traditionnel à la fois sobre, élégant et compact. Son architecture équilibrée lui permet de s’intégrer facilement dans tous types d’environnements et de s’adapter à toutes les configurations de terrains.
La façade avant se distingue par un jeu harmonieux de lignes entre les fenêtres, la porte d’entrée et le porche, apportant une touche d’originalité. À l’arrière, deux grandes portes-fenêtres ouvrent généreusement la maison sur l’extérieur et offrent une belle luminosité naturelle aux pièces de vie.
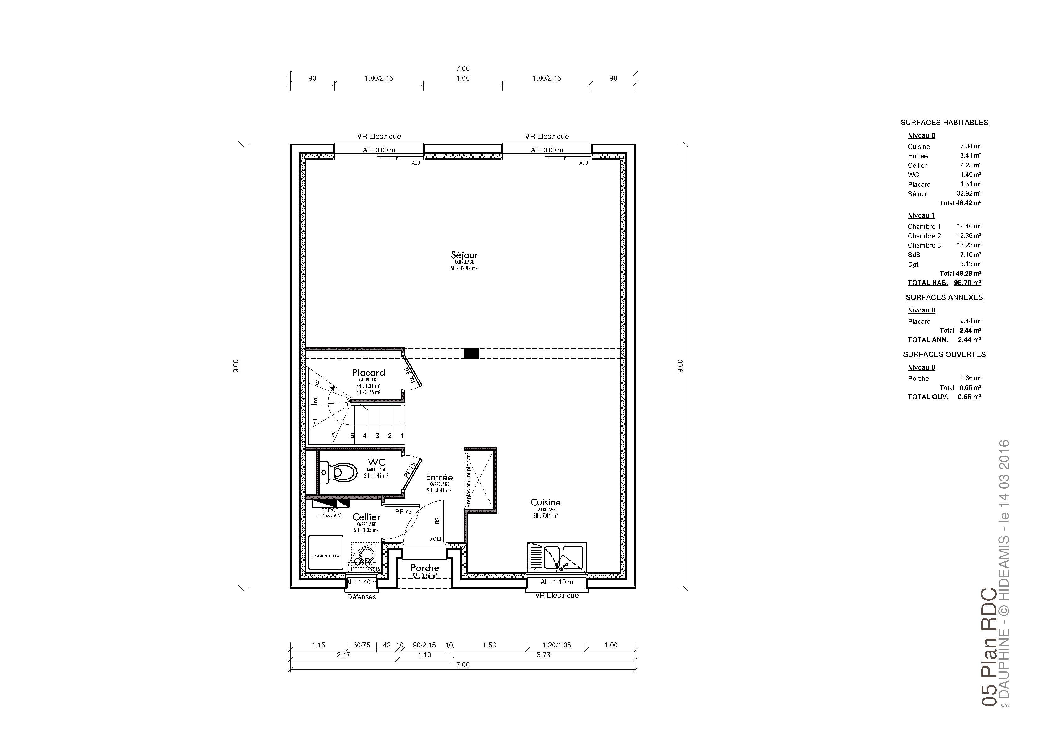
Les plans ont été conçus pour allier fonctionnalité et confort, répondant parfaitement aux besoins d’une famille. Au rez-de-chaussée, une entrée dessert un séjour spacieux et lumineux de 33 m², une cuisine ouverte de 7 m², un cellier pratique ainsi qu’un WC indépendant. Des rangements intégrés sous l’escalier optimisent l’espace et facilitent l’organisation du quotidien.
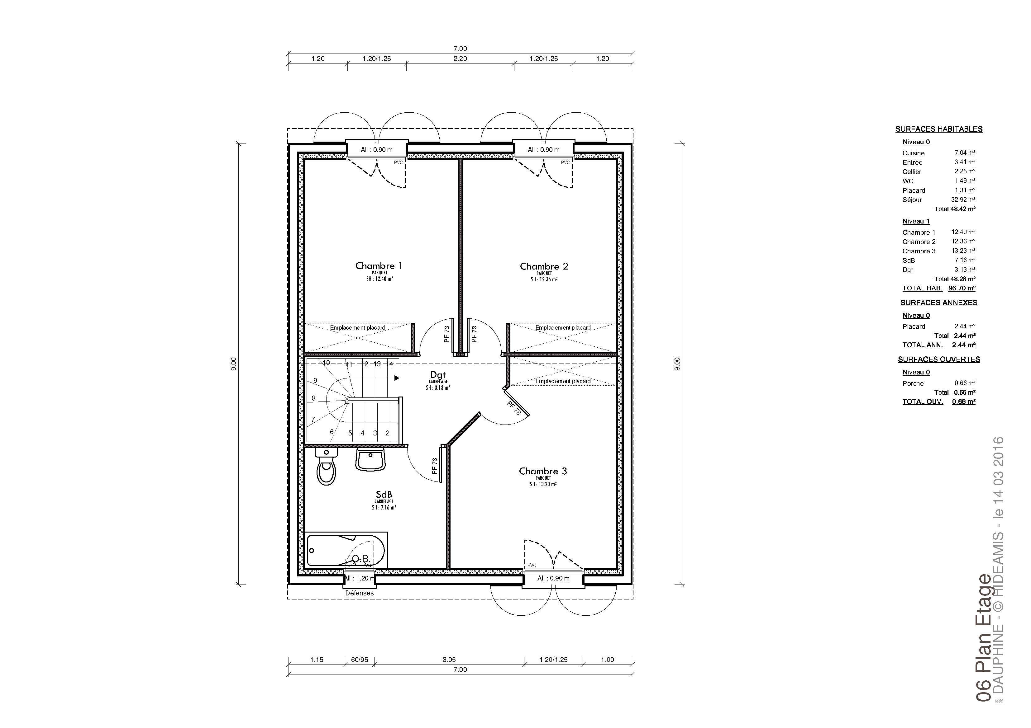
À l’étage, l’espace nuit se compose de trois grandes chambres aux surfaces généreuses (12 et 13 m²), toutes équipées de rangements, ainsi que d’une belle salle de bains avec baignoire et fenêtre, apportant confort et lumière naturelle.
La façade avant se distingue par un jeu harmonieux de lignes entre les fenêtres, la porte d’entrée et le porche, apportant une touche d’originalité. À l’arrière, deux grandes portes-fenêtres ouvrent généreusement la maison sur l’extérieur et offrent une belle luminosité naturelle aux pièces de vie.
Les plans ont été conçus pour allier fonctionnalité et confort, répondant parfaitement aux besoins d’une famille. Au rez-de-chaussée, une entrée dessert un séjour spacieux et lumineux de 33 m², une cuisine ouverte de 7 m², un cellier pratique ainsi qu’un WC indépendant. Des rangements intégrés sous l’escalier optimisent l’espace et facilitent l’organisation du quotidien.
À l’étage, l’espace nuit se compose de trois grandes chambres aux surfaces généreuses (12 et 13 m²), toutes équipées de rangements, ainsi que d’une belle salle de bains avec baignoire et fenêtre, apportant confort et lumière naturelle.






