
Maison Bercy
Plain Pied - 94m² - 4 chambres
Le modèle Bercy est une maison de 94 m² habitables, conçue en plain-pied avec combles aménagés, idéale pour conjuguer praticité, confort et optimisation de l’espace. Son architecture traditionnelle et sobre offre des lignes équilibrées et compactes, tout en privilégiant la luminosité et les espaces ouverts. Grâce à sa faible emprise au sol, le modèle Bercy s’adapte facilement à tous types de terrains, y compris les parcelles plus contraintes.
Les plans fonctionnels et modulables ont été pensés pour répondre aux besoins du quotidien. Au rez-de-chaussée, l’espace de vie s’articule autour d’un vaste séjour traversant de 34 m², baigné de lumière, ouvert sur une cuisine de 8,5 m² et complété par un cellier pratique pour le rangement. Une première chambre se situe également à ce niveau, équipée d’un placard, ainsi que d’un WC attenant, offrant un réel confort de plain-pied.
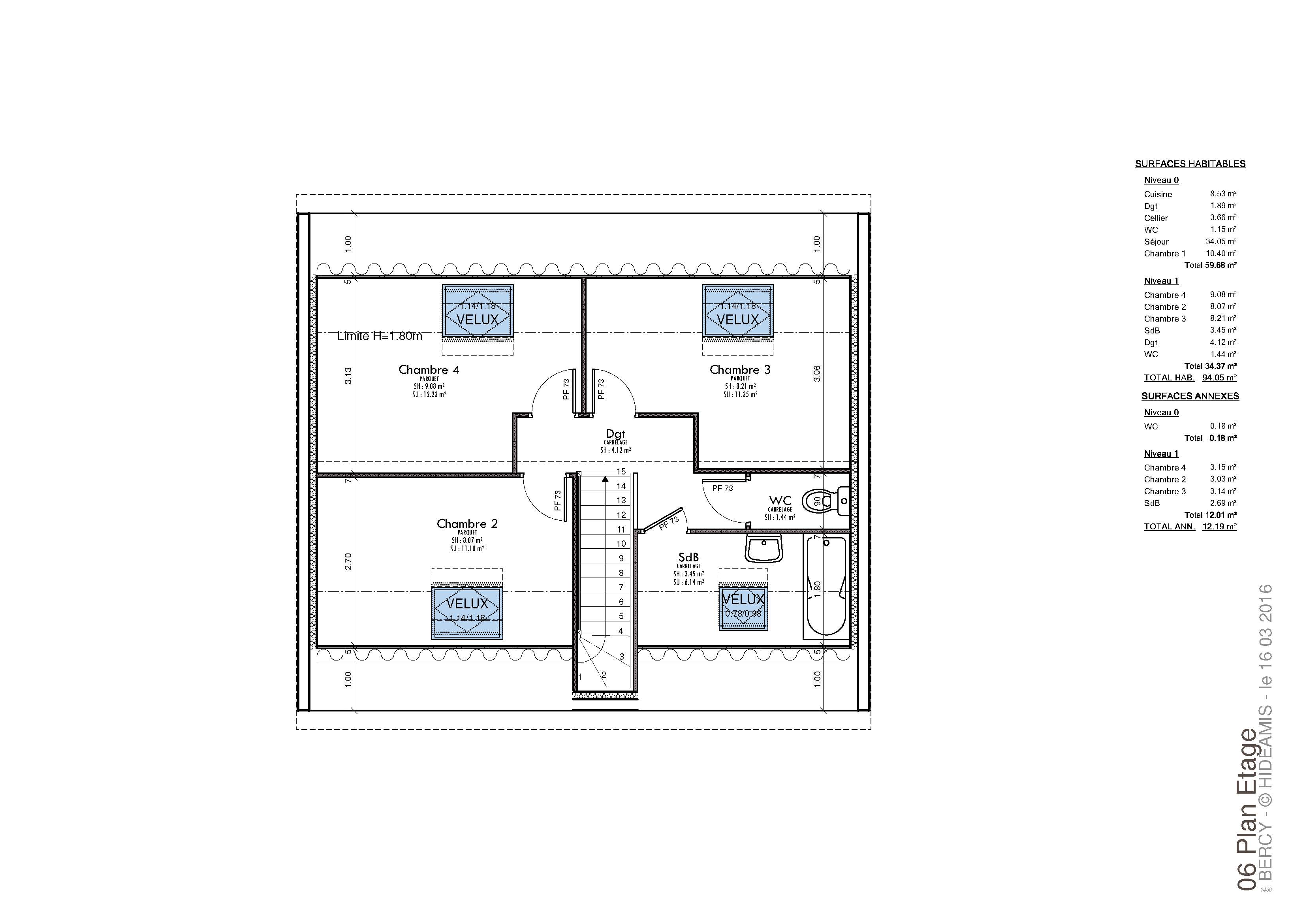
À l’étage, aménagé sous les combles, l’espace nuit accueille trois chambres lumineuses et indépendantes, ainsi qu’une salle de bains avec baignoire, éclairée par un velux, créant une atmosphère agréable et fonctionnelle pour toute la famille.
Les plans fonctionnels et modulables ont été pensés pour répondre aux besoins du quotidien. Au rez-de-chaussée, l’espace de vie s’articule autour d’un vaste séjour traversant de 34 m², baigné de lumière, ouvert sur une cuisine de 8,5 m² et complété par un cellier pratique pour le rangement. Une première chambre se situe également à ce niveau, équipée d’un placard, ainsi que d’un WC attenant, offrant un réel confort de plain-pied.
À l’étage, aménagé sous les combles, l’espace nuit accueille trois chambres lumineuses et indépendantes, ainsi qu’une salle de bains avec baignoire, éclairée par un velux, créant une atmosphère agréable et fonctionnelle pour toute la famille.







